Alles over Matrasmaten: Hoe Kies je de Perfecte Afmeting voor je Slaapkamer?
Inleiding
De zoektocht naar een nieuw matras draait vaak om het materiaal – koudschuim, pocketvering, of traagschuim. Maar voordat je je verdiept in de perfecte hardheid, is er één fundamentele stap die je niet mag overslaan: de maat. Het correct kiezen van de matrasmaten is cruciaal voor zowel je slaapcomfort als de esthetiek en functionaliteit van je slaapkamer.
Een te smal of te kort matras kan leiden tot onrustig slapen, terwijl een te groot matras de slaapkamer onnodig krap kan maken. De term matrasmaten omvat een breed scala aan standaarden, van de compacte eenpersoonsmatras tot de royale kingsize-variant.
In deze ultieme gids doorlopen we alle gangbare matrasafmetingen in Nederland. We geven je praktische meettips en helpen je te bepalen hoeveel ruimte je écht nodig hebt voor ongestoorde nachtrust. Ontdek hoe je de ideale lengte en breedte kiest op basis van je lichaamslengte, slaapgewoonten en partner.
Inhoudsopgave
- Waarom de Juiste Matrasmaat Meer is dan een Getal
- De Standaard Breedtematen: Van Eenpersoons tot Kingsize
- De Cruciale Lengte: Hoe Lang Moet je Matras Zijn?
- De Twijfelaar en Queensize: De Populaire Tussenmaten
- Afmetingen Boxspring vs. Ledikant: Let op de Maatvoering
- Praktische Tips: Meten is Weten (Inclusief Slaapkamer Ruimte)
- Conclusie: De Perfecte Afmeting Vinden (Call-to-Action)

1. Waarom de Juiste Matrasmaat Meer is dan een Getal
De afmeting van je matras heeft een directe invloed op je slaapkwaliteit. Een te kleine matras dwingt je om in een onnatuurlijke houding te liggen, wat resulteert in draaien, woelen en uiteindelijk vermoeid wakker worden.
De Psychologische Factor: Bewegingsvrijheid
Tijdens je slaap draai je gemiddeld 20 tot 40 keer per nacht. Je hebt voldoende ruimte nodig om deze bewegingen ongestoord te maken.
- Onrustig Slapen: Als je te dicht bij de rand ligt of je partner aanraakt bij elke beweging, wordt je slaapcyclus onderbroken.
- Vochtregulatie: Een matras moet ook aan de zijkanten goed kunnen ventileren. Als het matras te strak in het bedframe ligt, kan de ventilatie belemmerd worden, wat nadelig is voor matras warme slapers.
Matrasmaten en Relatiecomfort
Voor koppels is de breedte van het matras direct gerelateerd aan de kwaliteit van de gezamenlijke slaap. Deel je een matras van 140 cm, dan heeft elke persoon slechts 70 cm breedte – krap voor de meeste volwassenen.
Interne Link Tip: Voor koppels die in een te klein bed liggen, is de boxspring vs ledikant vergelijking ook van belang, aangezien de opbouw van een boxspring vaak meer ligruimte biedt dan een ledikant met brede randen.
2. De Standaard Breedtematen: Van Eenpersoons tot Kingsize
De breedte is de meest variabele factor bij het kiezen van matrasmaten. Hier zijn de meest voorkomende standaarden in Nederland en hun ideale gebruiker:
Eenpersoons Matrassen
De eenpersoonsmatrassen zijn ideaal voor kinderen, tieners, en volwassenen die alleen slapen in een kleinere kamer.
- 90 x 200 cm (Standaard Eenpersoons): De meest gangbare maat. Biedt voldoende ruimte voor de gemiddelde volwassene.
- 80 x 200 cm: Geschikt voor zeer kleine kamers of als extra bed, maar kan snel krap aanvoelen voor grotere personen.
Tweepersoons Matrassen
Dit zijn de breedtes die ontworpen zijn om door twee personen gebruikt te worden:
- 160 x 200 cm (Queensize): De meest populaire tweepersoonsmaat in Nederland. Dit is een goed compromis tussen slaapcomfort en ruimtebesparing in de slaapkamer.
- 180 x 200 cm (Kingsize): Biedt royale ruimte. Elke slaper heeft 90 cm breedte, wat gelijk staat aan een eigen eenpersoonsbed. Dit is de perfecte keuze voor wie maximale bewegingsvrijheid wil.

Tip: Overweeg bij de 160×200 of 180×200 matrasmaten de optie voor twee losse matrassen met een topper. Dit minimaliseert ‘rolbewegingen’ en maakt het makkelijker om de hardheid per persoon af te stemmen.
3. De Cruciale Lengte: Hoe Lang Moet je Matras Zijn?
De lengte van het matras wordt vaak onderschat, maar is de sleutel tot comfort voor lange personen. De standaardlengte van 200 cm is lang niet voor iedereen geschikt.
De Vuistregel voor Matraslengte
De ergonomische vuistregel stelt dat je matras minimaal 20 centimeter langer moet zijn dan de langste persoon die erop slaapt.
- Standaardlengte (200 cm): Perfect voor mensen tot ongeveer 180 cm.
- Extra Lange Matrasmaten (210 cm en 220 cm):
- 210 cm: Aanbevolen voor mensen tussen 180 cm en 190 cm.
- 220 cm: Essentieel voor iedereen boven de 190 cm.
Het Belang van Matraslengte bij Boxsprings
Bij een boxspring, die vaak een gestoffeerd hoofdbord heeft, is de totale lengte van het bed groter dan de matrasmaat. Let bij lange matrasmaten goed op of het bedframe (ledikant) of de box wel in de slaapkamer past.
Vraag & Antwoord (Featured Snippet):
V: Wat is de beste matrasmaat voor een persoon van 195 cm lang?
A: Voor optimale comfort en om te voorkomen dat je voeten over de rand hangen, wordt een matraslengte van 220 cm sterk aanbevolen. Dit geeft je 25 cm speling aan het hoofd- en voeteneinde.
Interne Link Tip: Als je de afmetingen van je slaapkamer al hebt opgemeten, kun je direct bepalen wat de ideale hardheid is door onze gids over het ideaal matras kiezen te lezen.
4. De Twijfelaar en Queensize: De Populaire Tussenmaten
Tussen de eenpersoonsmatras en de grote tweepersoonsmatrassen liggen de populaire tussenmaten die vaak de perfecte oplossing bieden.
De Twijfelaar (Matras 120×200)
De twijfelaar (meestal 120 x 200 cm) is een veelzijdige afmeting.
- Ideaal voor:
- Tieners of studenten die veel ruimte willen, maar een kleine kamer hebben.
- Volwassenen die alleen slapen, maar graag breed liggen.
- Koppels die zeer knus willen slapen, of voor kortstondig gebruik.
De twijfelaar biedt aanzienlijk meer ligruimte dan een 90 cm matras, zonder de enorme ruimte die een 140 cm matras inneemt.
De Compacte Tweepersoons (Matras 140×200)
De maat 140 x 200 cm is de meest compacte tweepersoonsmatras en is een zeer populaire keuze.
- Voordeel: Ideaal voor de eerste gezamenlijke woning of studio’s, waar ruimte schaars is. Het biedt net genoeg ruimte voor twee.
- Nadeel: Voor twee volwassenen is de ruimte per persoon slechts 70 cm, wat betekent dat beweging van de één makkelijk de ander verstoort. Als je de ruimte hebt, is de 160×200 een betere investering in slaapkwaliteit.

Interne Link Tip: Als je de 140×200 kiest, zorg dan dat je het juiste type matras kiest. Een matras warme slapers in deze compacte maat is essentieel om oververhitting door gebrek aan ventilatieruimte te voorkomen.
5. Afmetingen Boxspring vs. Ledikant: Let op de Maatvoering

Ledikant Afmetingen
Bij een ledikant (bedframe) wordt de maat altijd aangeduid met de binnenmaat (de maat van het matras).
- Buitenmaat: De totale buitenmaat is de matrasmaat + de dikte van het frame (kop- en voeteneinde en zijkanten). Een 180×200 ledikant is in totaal dus vaak 190×210 cm of groter.
- Lattenbodem: Zorg ervoor dat dEen illustratie die de binnenmaat van een ledikant (matrasmaat) en de buitenmaat (frame + matras) duidelijk onderscheidt.e bedbodem die je kiest exact dezelfde maat heeft als de matrasmaat (bijvoorbeeld 90×200).
Boxspring Afmetingen
Een boxspring wordt ook aangegeven met de matrasmaat (bijv. 180×200), maar het systeem is compacter.
- Buitenmaat: De boxen zijn exact de matrasmaat. Alleen het hoofdbord steekt meestal uit, waardoor de totale breedte en lengte iets groter zijn.
- Topper: Bij een boxspring met twee losse matrassen (bijv. 2x 90×200) ligt vaak één grote topper (180×200) bovenop om de naad te elimineren.
Externe Link Tip: Voor je gaat meten, bekijk de officiële NEN-normen voor bed- en matrasmaten om zeker te zijn van de terminologie. Meer info over matrasmaten.
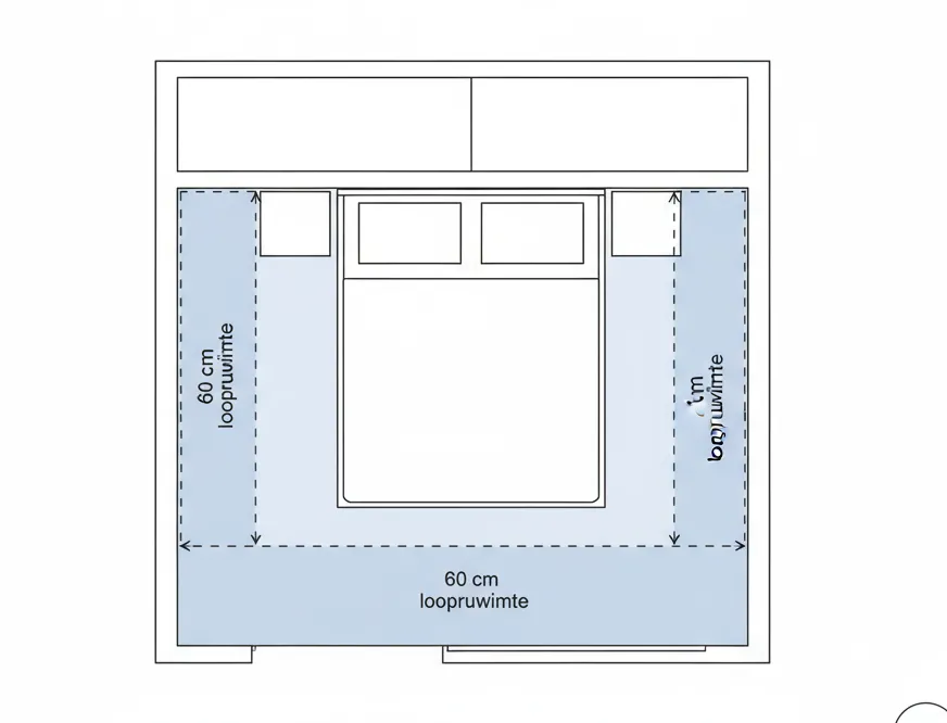
6. Praktische Tips: Meten is Weten (Inclusief Slaapkamer Ruimte)
Een miskoop door verkeerde matrasmaten is zonde van de tijd en het geld. Volg deze stappen voor een perfecte meting.
De Slaapkamer Meten
Voordat je de matrasmaat kiest, moet je weten wat de maximale buitenmaat van het bed mag zijn.

- Loopruimte: Je hebt aan de zijkanten van het bed minimaal 60 cm loopruimte nodig.
- Deur en Ramen: Controleer of je de kastdeuren en ramen nog gemakkelijk kunt openen als het bed er staat.
- Transport: Meet de afmetingen van de trap, de hal en de deurposten. Een boxspring (zeker de 180×220) kan moeilijk door een smal trapgat.
Het Oude Matras Correct Meten
Als je een oud matras vervangt, meet dan altijd het bedframe (de binnenkant) en niet het oude matras. Oude matrassen zijn vaak ingezakt en smaller geworden.
- Meet de Binnenmaat: Meet de lengte en de breedte van de ruimte waar het matras in komt te liggen (van binnenrand tot binnenrand). Gebruik een degelijke rolmaat.
7. Conclusie: De Perfecte Afmeting Vinden (Call-to-Action)
Het kiezen van de juiste matrasmaten is de fundering voor een goede nachtrust. Vergeet niet dat groter meestal beter is, mits de afmetingen van je slaapkamer het toelaten. Investeer in de lengte als je lang bent en in de breedte als je met een partner slaapt.
De Ideale Matrasmaat Kiezer:
- Alleen & Ruimte Geen Probleem: 120×200 cm (Twijfelaar)
- Koppel & Comfort Eerste: 180×200 cm (Kingsize)
- Lange Koppel (beide > 190 cm): 180×220 cm
Nu je weet welke maat je nodig hebt, kun je de volgende stap zetten: het bepalen van het perfecte materiaal.
Klaar om jouw ideale afmeting in huis te halen?
Vergelijk nu direct de beste matrassen in alle gangbare matrasmaten en vind de scherpste aanbiedingen via Maxbedden.nl!
